简
繁
扫一扫
打开 · 手机版
热门搜索:
招聘
就业补贴
公务员
人才引进
就业
首页
新闻中心
政务公开
政务服务
互动交流
招商引资
善美韶关
您当前的位置:
首页
>
部门频道栏目
>
韶关市自然资源局
>
规划公示
>
批后公告
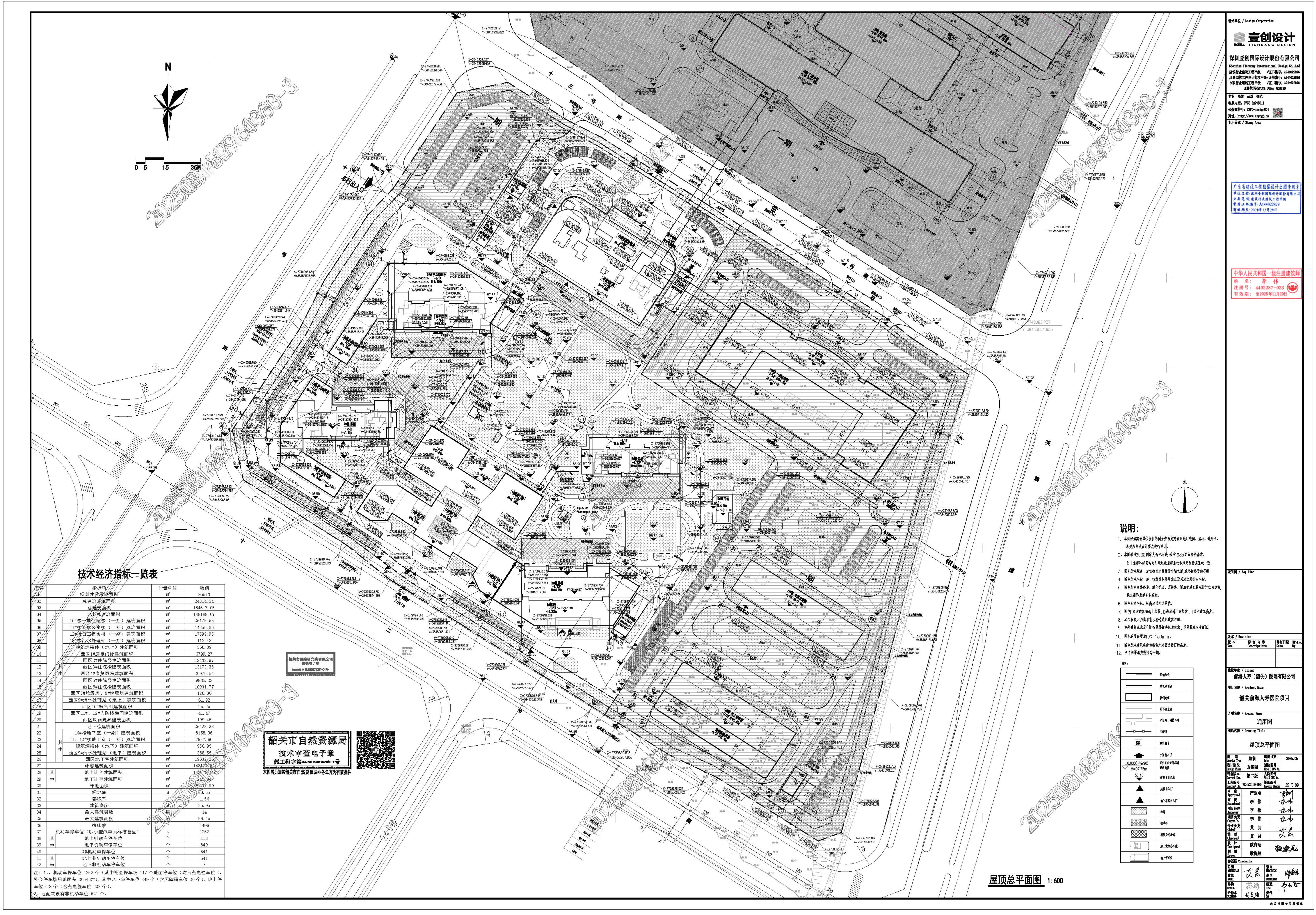
韶关前海人寿医院项目(西区)建设工程规划许可证批后公告
时间:
2026-02-02 14:52:13
来源:
本网
访问量:
-
【打印】
【字体:
大
中
小
】
分享到:
韶关前海人寿医院项目(西区)建设工程规划许可证批后公告 .wps
相关文件:
相关新闻